
自身预热式烧嘴 BSREC系列,主要用于工业燃气加热领域直接或间接加热应用中,尤其适合用于有气氛保护要求的辐射管间接加热场合。
性能特点
铝制壳体,烧嘴重量轻;
模块化设计,便于安装维护;
最高可将空气预热到700℃,高效节能;
分级燃烧设计,NOx排放低;
烧嘴换热器有金属、陶瓷、光管3种类型可选。
烧嘴结构
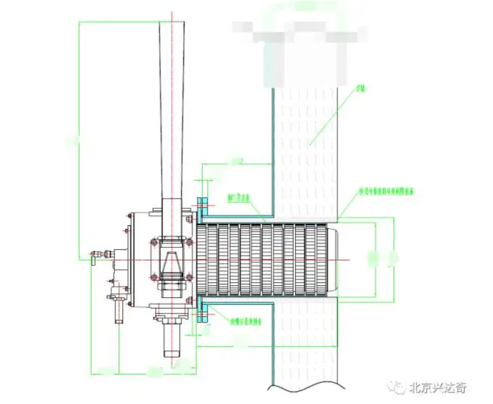
自身预热式烧嘴主要由壳体、换热器、空气导流管、烧嘴芯组成(见下图)。
其中烧嘴芯由固定圆盘、燃气导管、混合装置、点火电极和陶瓷燃烧室组成。
在明火加热应用时,还需加装烟气导流套(下图)
工作原理
燃气通过烧嘴芯导管进入喇叭口,与不参与换热的少量空气混合,然后被点火电极产生的高压火花引燃,其余大量空气沿着换热器内壁与烟气进行热交换,然后从换热器末端进入燃烧室根部和烧嘴燃烧室出口处分级参与燃烧。烟气顺着换热器外壁往外输送,在负压作用下抽到烟道中。冷空气在刚进入时起到冷却烧嘴壳体的作用。
应用实例
一、直接加热:
也叫明火加热,配套烟气引射器增大排烟抽力,使烟气沿换热器外壁顺利排出。(下图)
二、间接加热:
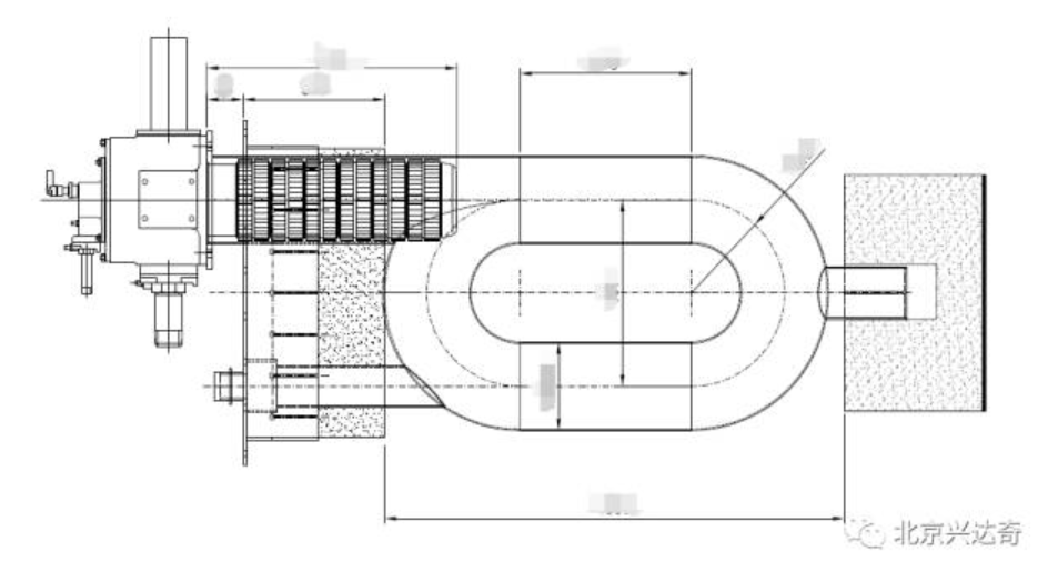
也就是辐射管加热,自身预热式烧嘴可用于3种类型辐射管的加热。
1、一字型(I型)辐射管(下图)
2、P型辐射管(下图)
3、双P型辐射管(下图)
整装待发
欢迎新老顾客订购,欢迎来电咨询。
010-63580920 63580029
|
联系我们 |
扫一扫 进入官方微信 |
![]() |
扫一扫 进入官方微博 |
![]() |